庐江矾山结晶池遗址改造—修复与重塑文化生态景观/ FLIP studio番番營作
合肥庐江矾矿,作为一处承载深厚历史价值的工业遗址,见证了我国矿业发展的辉煌历程。不同于传统的文保更新模式,结晶池的改造以策划与设计为先导,通过展览、咖啡、文创与公共活动的植入来激活场地。在保留原有建筑结构、台阶地貌与圆坑遗址的基础上,设计置入架空黑色栈道,生成全新的参观动线,并以“晶体”为媒介,以透光材料打造展陈、家具与灯光装置串联不同的空间功能。工业遗址由此不再只是被凝视的对象,经更新改造被赋予当代生活场景的矿坑咖啡,成为承载当代生活与生态修复的公共容器,实现了工业遗址的修复与文化生态景观的重塑。


项目背景:“千年矾都”的辉煌历史与落寞困局
庐江矾山素有“千年矾都”之称,采矿史可追溯到唐朝。50-70年代进入鼎盛期,矾矿迎来了黄金时代,然而90年代市场萎缩后于2001年停产,矿区辉煌的落幕遗留下来的,不仅仅是破旧的厂房还有满目疮痍的山体和逐渐恶化的生态环境。炉火熄灭了,结晶池被废弃,巨大的圆坑如大地沉默的伤口,裸露的台阶地貌在风雨侵蚀中荒芜,曾经的动力核心,其蕴含的独特历史价值与空间潜力,在漫长的沉寂中几近湮灭。



战略性破题:保育|活化|植入|焕新
面对这片承载千年工业血脉却又濒临“废墟化”的遗址,常规封存式保护显然力有不足。结晶池改造项目需要破局的利器,其核心策略凝练为:保育为本,活化为径,植入为机,焕新为果。 这并非保守的瞻仰与凝视,亦非粗暴的覆盖或篡改,而是一次以深刻尊重为前提的、创造性的介入:探索如何在修复遗址的物质衰败与历史断层的同时,修复其与当代社会、自然生态之间被割裂的纽带,最终重塑一个融合工业遗产、文化活力与生态韧性的文化生态景观。





保育:守护工业记忆的基石
保育是贯穿始终的底线与出发点。设计以近乎考古学的严谨态度对待场地遗存。结晶池群那由历史生产活动塑造的独特的台阶型地貌,是工业过程在大地上的直接镌刻,被完整保留下来,成为整个场地最震撼的立体基座。巨大的圆坑遗址——工业流程的终端容器——其原始的、粗粝形态与坑壁赤青色的矿物渍迹一起被精心呵护。那些承载着历史信息的原有建筑结构,如建筑的木结构绗架,斑驳的混凝土框架柱与条形基础,均被最大限度地保留,在确保这些工业“骨骼”的稳定性与安全性的同时,使其得以成为后续一切活化与植入得以生根发芽的坚实土壤。




活化:流动的叙事,以晶体为媒介
设计在庞大的工业地景之上,编织出一条独立的路径——架空的黑色木栈道系统。栈道穿梭于高低错落的台阶地貌之间,凌驾于巨大的圆坑遗址之上,既最大限度地减少了对原始地貌的触碰与干扰,又为访客创造了视角多变的立体游览动线。



“活化”的灵魂更在于主题叙事与空间氛围的营造。设计提炼矾矿核心产物——“晶体” 作为贯穿的媒介。一系列以透光性材料(如白色半透明玻璃钢,透明亚克力管,彩色磨砂玻璃)制作的展陈、家具及灯光装置被嵌入场地。


展览空间中的展台、研学工坊的长桌、咖啡吧的吧台都是以手工制作的白色半透玻璃钢制成。休息区的沙发以及文创区的置物架与展台是由工作室开发设计的一套结合回收老木头、彩色磨砂亚克力和金属框架的家具系统,意在回应工业厚重质感的同时,碰撞出新与旧的对话。矿坑咖啡区每个圆坑咖啡的上方悬挂着17个经过多次实验测试的,由亚克力弯管与LED灯丝制成的3m直径的巨型灯光装置。



这些“晶体”元素在自然光下折射光影,在阴天和傍晚则化为柔和的发光体,犹如从遗址深处重新生长出的璀璨矾花,游客行走其间,仿佛置身一部关于光、矿物与时间的立体诗篇。
植入:新功能赋予当代生命力
激活遗址,使其从单纯被凝视与瞻仰的客体身份中解脱出来,得益于文旅策划与设计先行的模式。项目结合遗址原有的地形、地貌、圆框的现状等因素,大胆而精准地植入了七类核心功能:入口接待、明矾主题展览、矿坑遗址参观、室外水雾景观剧场、50年代历史物件展览、矿坑咖啡、文创零售;并利用部分开阔的台阶地貌或平整区域,设置灵活多变的活动场地,使其可举办工作坊、研学教育、现场演奏,时装表演等活动,吸引多元人群,注入持续活力。





其中最具标志性的植入点莫过于选取尺度适宜的圆坑遗址,将其转化为独一无二的“矿坑咖啡”。顾客沿着栈道下行进入,坐在以晶体为灵感的透光材质的圆环形灯具装置之下,手握一杯温热咖啡,环顾着四周历经沧桑的坑壁,工业历史的厚重与当代生活的闲适在此刻奇妙交融。圆坑从被远观的遗址,变为可沉浸其中、承载当代生活场景的容器,完成了从“客体”到“主体”的身份蜕变。



这些植入并非简单的功能堆砌,而是深度契合场地特质与主题,并与保育的工业风貌、活化的叙事体验形成有机互动。它们像精心培育的新生组织,生长于遗址的“骨骼”与“脉络”之上,赋予其服务当下、面向未来的实用价值和吸引力。
焕新:文化生态景观的重塑
保育其形,活化其神,植入其用,最终导向的是遗址及其所在区域整体的“焕新”。这种焕新是深刻而多维的。矿坑从废墟中重生,成为充满活力、可游可赏可用的文化地标。设计的介入不止于文化层面焕发新意,更将生态修复纳入其中:巨大的圆坑,一部分置入明矾晶体重现结晶池结晶的过程,一部分形成结构脱开的咖啡区卡座,还有一部分则引入室内植物景观,化作涵养水土、孕育微小生态的“自然的容器”。在这种层层递进的更新逻辑中,工业遗址逐渐蜕变为具有生态韧性的基底。


改造后的庐江矾山结晶池遗址,凭借保育、活化、植入的一系列策略,实现了从单一废弃工业场所到复合型文化生态景观的重塑蜕变。在这里,工业历史遗产不再是孤立的存在,它与修复中的自然生态紧密共生,又与当代文旅功能和谐交融,共同构筑成一个层次丰富、可持续、且具有强大吸引力的整体。




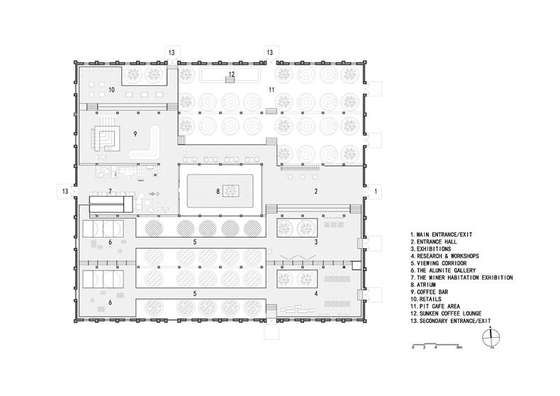
平面图
项目信息
项目名称:庐江矾山结晶池遗址改造
项目地点:安徽省合肥市庐江县
业主:安徽矾山文旅投资运营有限公司
设计单位:FLIP studio 番番營作
策划:杨函憬
深化单位:安徽省城市综合设计研究院有限公司
主持设计师: 孙凯伦、王志明
设计团队:陈子玄,张旨脉
摄影师:朱润资
空间面积:2000㎡
设计时间:2024.06-2025.05
完工时间:2025.05
关于FLIP Studio番番營作

“FLIP”名字来源于建筑师孙凯伦于2016年联合创立的FLIPPOP城市实验空间项目,即将原来一个十平米的沿街商铺根据不同租客需求转变为多功能空间。取名为“FLIP”,是因为空间的概念是一扇可“翻转”的⻔,当⻔开启之时,室内即与街道连通,变成了城市街边的一个公共空间。
FLIP相信从个人到城市的尺度,由艺术到设计的延展,通过跨领域的碰撞和交流,才能不断拓展建筑学边界,并为之带来维持其先锋性和社会性的活力。番番營作的实践包括家具与装置、室内设计、建筑设计到城市更新。
对FLIP来说,建筑是生⻓的空间,在时间的作用下与人的活动,环境,城市发生关系。工作室关注如何为这种关系提供一个可能性;通过寻找某一个契机有时是一个装置,有时是一种行为,为空间带来一系列化学反应,带来不同场景与体验,形成新型社交场所。

设计腕儿官方微信
010-88600030



