石头兄弟联创设计丨中海寰宇時代


《圣经》告诉我们世界是怎样发展的,它以一座花园开始,汉座神圣的都市而告终。
——布鲁斯克
高度的城市化发展,不知从何时起,人们开始对千篇一律的城市建筑感到乏味、感到无助,因此,打造一处能够使人放空身心的空间,犹如久旱的虎皮兰一样,即使环境极其恶劣,也能保持那份泾路分明的色彩。

鱼与熊掌速度和质量在设计师眼中的关系,就像鱼与熊掌,在面临品质与速度之间,往往要舍出其一,但奇迹往往就是在认为不可能的情况下创造,在保证品质的同时,石头兄弟做到1天出方案,45天完美呈现眼中。
中海寰宇时代位于光明科学城与凤凰城两大核芯交汇处,地理位置优越,可谓是“核芯中的核芯”,香港著名企业家李嘉诚先生曾经讲过投资首先要选地段好的位置。在中海光明城“科技化、未来化、国际化”的核心需求下,通过对空间环境的把控,在保持空间分明的同时,对不同形式的不同理解,在不同的语境下用不同的形态演绎着不同的表达。
▼实景拍摄


▼效果图

由入口进入室内,采用山水纹理的大理石的接待台便映入眼前,传达氤氲的气息,使接待中心各个空间流畅而富有变化,与线条型的灯光样条远近呼应,营造出包容气质,似乎也在隐隐的传达这座城市的容貌,慢慢的深入,渐渐展露它的真实面容。
实景与效果的来回切换,仿佛辨不清真真假假,这从容的背后则是强大的实力。
▼实景拍摄



▼效果图


人处于自然,木依存土壤,同共于生。秉承中海一贯卓越的国际化发挥理念,在项目中使用通透的巨幅玻璃,打破传统墙面的“空间约束”“视野约束”,通过全感官设计理念的传达,时刻感受着开阔的视野,让每一处一览无遗,视觉的传达,室内外空间的交互,这正是全感官理念的核心。


洽谈区,意在去售楼处化,用当代艺术重新定义空间,打造专属的都市会客厅。顶部独特的设计减轻空间纵向厚重感,延伸效果由此产生。木质所带来的轻盈和流畅的线条随处可见,到访者逐光而行,感受设计的智慧。这便是我们给你最好的礼物。




接待大厅没有铺金结彩的夸张视效,而采用大面积的木纹装饰,简约而朴实。



站位于设计,我们寄希望于能够通过设计语言的转换,可以让中海寰宇时代的核心理念与国际审美思潮产生碰撞,并在空间中达到和谐共生的平衡。

以砂石为底,选定有轻盈上升态势之羽,结合空间气质与空间动势,恰到好处的诠释了沉静、自由、臻我、从容。

当你安坐在深色布椅上,收到阳光的问候,绿的花香,悠闲又舒适,户外美景尽收眼底,流连忘返。这便是最好的礼物。


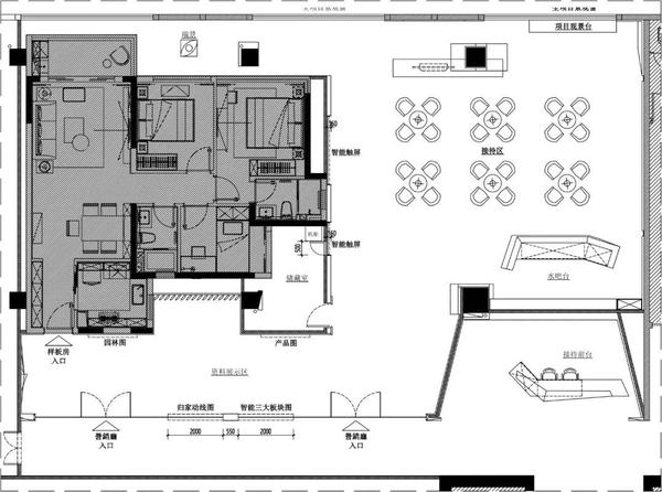
平面图▼

项目名称: 中海寰宇时代售楼中心
项目时间:2020年4月-2020年6月
项目面积:300㎡
项目地址: 深圳市光明区观光路与光源五路交互处
艺术总监: 王新时
设计团队: 王新时 邓雄宇 卢瀚贤 丘娇 杨永锦
陈俊杰 雷健航 赵帅 郑怡婷
摄 影: 邓泳菁
文 案: 牛文壮








