DAS Lab | 好利来概念店




媒介在商业的历史进程中发挥着重要的传播作用,它本身蕴含着时代的属性,它的进步改变着人们接收信息的方式,进而推动人类思考和行为的进化。在这个项目中,我们希望利用空间装置作为载体、传播好利来的品牌精神,以更感性的方式与大众开展一场轻松而深度的交流。



△ 空间动图




无论是过去、现在或未来,人们始终保持着对食物更多维度的探索,从而推动着食品生产技术的不断迭代和创新,而食品工业的发展,也为人们的食味和生活带来了无限可能。这种共生的关系成为这一处空间概念的灵感来源,设计师试图从后工业时代的复杂性中摄取素材,创造出具有机械美学的趣味空间,搭载当代主流传播媒介,向新一代消费者转译好利来品牌内核中的探索精神以及全新的烘焙理念。
△ 轴测图





我们将场景想象成一个“系统化”的生产车间,在这里陈列的产品更像是精确、可控的工业制品。机械组件暗示着标准化与自动化技术的进步,通过艺术的表达将挑高的传送带以及循环搅动的面粉容器作为可陈列、展示的场景单元,让人们仿佛置身于一个“实验场”,感受机械化时代背景下的复杂性。同时,也为品牌与大众建立了一个立体的多维度的情感共鸣场所。






不同材质的拼接、覆盖、延伸都能让人们以最直观的方式感受空间的叙事性。泡沫铝、不锈钢等灰调材料在发光膜的均匀照射下表现出纯净的质感,通过对材料低饱和度的控制,确保机械装置作为叙事性主体存在于场景中。








设计师将烘焙产品的陈列纳入对设计的考量之中,将机械部分的喷砂不锈钢与局部照明部件结合起来,借此在食物的温度与材料的冰冷之间制造戏剧式的冲突,将顾客的注意力聚焦在食物本身。





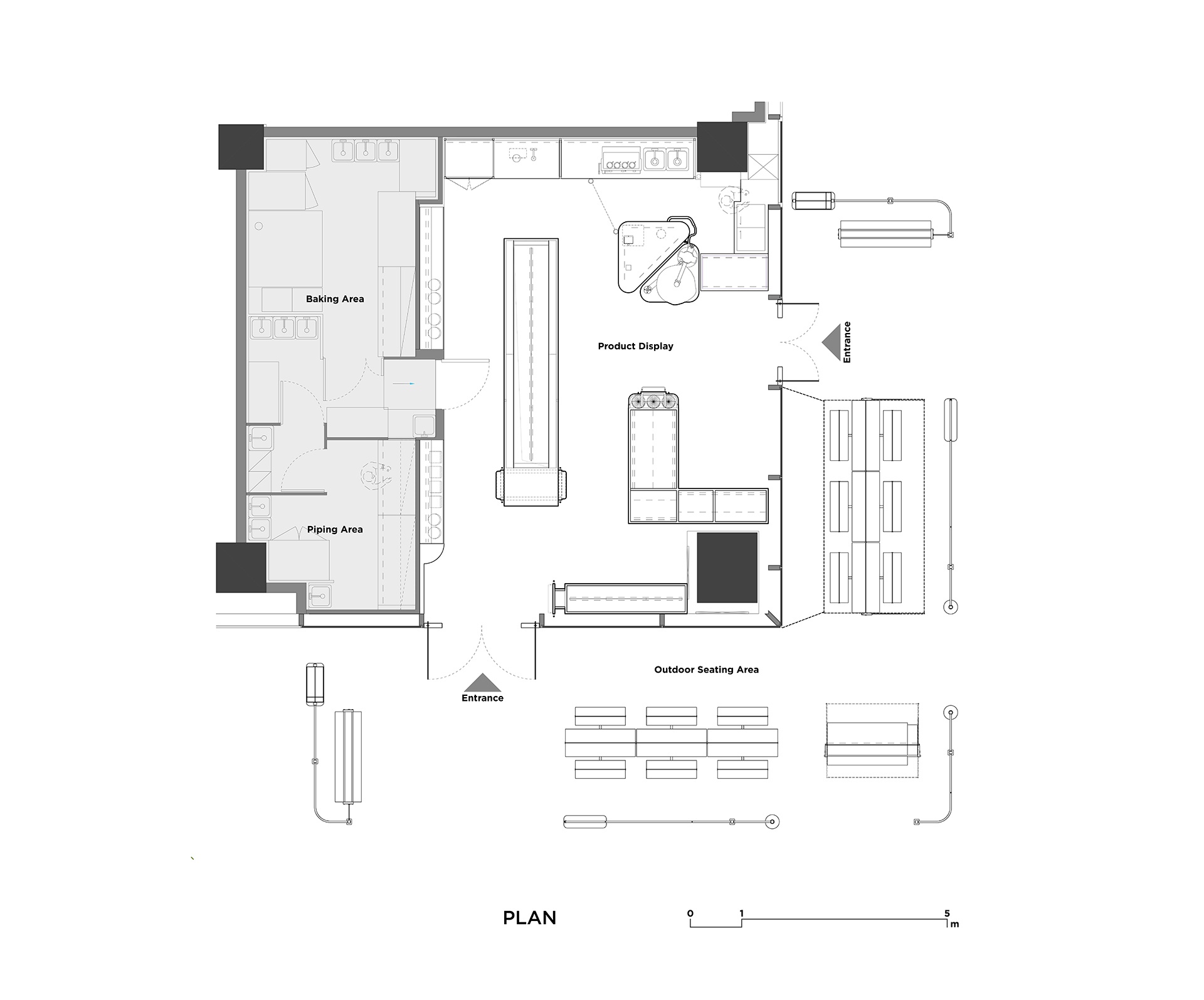
△ 平面图
△ 立面图
项目信息
项目名称:好利来概念店
项目地点:上海虹桥新天地
空间与道具设计:DAS Lab
公司网站:www.das-design.cn
主持设计师:李京泽
设计师:刘盛雨
业主:好利来
主要用材:泡沫铝(上海益荣金属材料有限公司)、贝多魔磨石地面(上海朵颐新材料科技有限公司)、雾面不锈钢(精钢世家)、火山石(上海金天迪建材有限公司)、渐变膜(台州贝莎美新材料有限公司)
室内面积:80㎡
设计时间:09/2019-11/2019
建造时间:12/2019-05/2020
摄影:邵峰
关于DAS Lab
DAS Lab 于2017年设立于上海,属大森设计旗下子品牌。由李京泽先生担任团队设计总监,以提供高品质设计服务为目的。致力在文化、零售、餐饮、酒店等多元业态中探索边缘的、前瞻的创意解决方案。并为行业贡献独特的高水准商业设计作品。
不论是建筑、空间或人都存在所谓的边界。DAS Lab擅长于偏离认知的核心区域,游离于思维的边界。在模糊与不确定中挑剔出作品独特的记忆点。积极把控概念推进到落地执行,交付令人难忘的空间体验。高完成度的设计作品是我们始终坚持的唯一标准。
DAS Lab与好利来、喜茶、木九十、STARTER、大乐之野等客户保持长期合作关系。作品在全球各大权威设计媒体发布,2019年荣获德国IF杰出设计大奖。








