普吉西岸别墅:功能重构,景观再生
“别墅其实是顶级生活方式的物理载体。当业主为设计支付费用,购买的不仅是空间解决方案,更是设计师用专业生涯积累的认知体系。”
—— 徐晓东 Eric Tsui

普吉岛以澄澈海洋与浓郁度假氛围闻名,孕育了众多融合东方美学的奢华居所。而在其西岸悬崖之上,一栋海景别墅经KWSD境物设计改造后,宛如隐匿于喧嚣、镶嵌于浪边的明珠。2021年夏,KWSD 设计总监 Eric Tsui 承接该别墅区改造委托,计划实现建筑更新与景观重塑。随后全球疫情来袭,设计沟通、当地建造对接及落地把控等工作均通过线上远程完成。这场跨越时差与文化的协作,恰如“空间重构”的预演——最终呈现的空间既通透自由,又连贯完整。
三千平米的别墅组团,由粗粝原石蜕变为精致居所:裸露圆岩依自然密度砌筑,原生柚木经切割显露温润纹理,在保留崖壁原始张力的同时,仿佛每一道痕迹都在诉说“再生”的意义——并非抹去时光的印记,而是让自然与人文在碰撞中生长出全新的对话方式。


坐落于普吉岛西岸悬崖处的豪宅别墅,背靠雨林,面朝大海,享受着岛上无与伦比的地理位置。傍晚点亮灯光,整座别墅宛若珍宝,遗世而独立。
01
设计源起:
羊绒、海浪与生活方式
2020年,经Eric改造的62米地中海超级游艇揭幕,企业家Jason Yang被内舱包裹的Loro Piana羊绒面料震撼。该面料直径不足16微米,原为顶级女装所用,此次是首次应用于航海空间。Jason感叹其打破了奢侈品与室内设计的边界,而Eric深耕顶级生活方式领域多年,将日内瓦钟表机芯原理、纳帕谷葡萄酒温湿度把控、古董相机光影哲学等认知,转化为独特设计语言,堪称“生活方式策展人”。


Eric在国内某豪宅项目中使用Loro Piana羊绒面料作为卧室墙面。
Eric曾说:“别墅其实是顶级生活方式的物理载体。当业主为设计支付费用,购买的不仅是空间解决方案,更是设计师用专业生涯积累的认知体系。那些在游艇甲板上测量的海风流速,在收藏级相机里理解的光影哲学,在高定西装中领悟的人体工学,最终都将转化为推窗见海时的那个完美瞬间。”


Eric设计的其中一艘游艇 © KWSD
(因私人项目的保密性质,此处仅作为案例示意)
此次合作让海岛别墅开发者看到其价值,三个月后,Jason Yang将三千平的普吉岛西岸别墅委托给Eric,希望他能将奢侈品的“绝对标准”引入度假地产,改造原本的杂乱无章的景观和室内空间,重新赋予它生机与活力。

普吉西岸别墅,整面向西,处处都享受着绝佳的海景。
02
悬崖别墅:
功能组织和路径的重塑

普吉西岸别墅鸟瞰照片
这座悬崖别墅隐于蜿蜒山径,受普吉西岸热带雨林气候影响,需兼顾度假场景适配与功能串联。设计秉持“最小干预”理念,最大化保留原有建筑结构,延续老建筑“骨骼”,注入新设计“活力”。

别墅隐匿于西岸的雨林中,仿佛从礁石中自然生长。
中心主楼为生活枢纽,经U型公路与石阶拾级而下方可抵达,暗合东方园林“藏景”智慧。客厅落地窗引山景入室,餐厅开放式布局融合温馨与松弛感。沿主楼步道下行,依次为倒映云天的上层泳池、简约休憩凉亭,尽头为主卧套房,露台直面碧海,兼具私密与景观优势。场地另一侧,员工楼与客房楼分区明确,客房楼通过更换地板、增设露台实现品质升级。

主楼客厅打通室内与露合间的隔断,将海景完全引入日常视野。


主楼露台
新增的两栋小楼,一栋是健身房,另一栋是康养SPA馆。落地窗外的常春植物为室内增添私密感,精油香混着草木清气从半开的窗缝溜进来。泡在恒温浴缸里,能看见阳光透过斑斓叶在瓷砖上晃出细碎的光斑。两栋建筑通过景观廊道与主楼平行相连,同时设有一条隐秘小径直达主卧套房,铺地采用青石板与鹅卵石交替,脚感的变化提醒着空间的转换,既保证了功能的独立性,又实现了交通的便捷性,让居住者在山林间即可享受专业的康体与疗愈服务。

康养 SPA 馆作为新建的空间之一,继承了普吉岛融合自然与奢华的特色风格。


康养 SPA 空间在材质上与当地施工方合作,打造成为了舒缓静谣的意空间。
针对泰国雨季多雨的气候特点,所有连接各楼栋的连廊均加装了轻盈的景观雨棚,既遮风挡雨,又保留了视线的通透性。景观廊道在遮蔽风雨的前提下,为人们提供了更丰富多元的观景视角,因此成为了空间之间难以忽视的纽带。人们从房间露台走到公共的餐区,穿过别墅体量间围合出的小庭院,既能感受到高品质的空间,又体验到不同视角的海洋——有时是开阔的海平面,有时是局部的浪尖,有时则是被崖壁切割出的一角蓝。


具有几何美感的旋转楼梯为垂直交通带来活力,盘旋而上,能够看到完全不同的海面景色。
03
景观性社交:
公共空间的自然生成
对于KWSD境物设计而言,景观设计是从实用到美学的进阶。除了让公共环境具有更多人工设计色彩,使得露天活动更加安全舒适外,KWSD希望通过尽量简洁的设计手段,在公共活动中为使用者创造更多的社交可能。


公共空间被赋予了不同的社交属性,为度假生活带来更丰富的选择。
在靠近悬崖的空间,设计师将原有逼仄的地台向外扩展,形成上下双层泳池体系。
上层泳池以“日常休闲与健身为主,视野开阔,于房间露台外就能将景色尽收;池边放置着几组躺椅,白色帆布材质在阳光下格外清爽,午后在此小憩,听浪声拍岸,恍若置身梦境。


上层无边泳地在视觉上悬于半空,与不远处的海面融为一体。
下层泳池则位于完全的公共空间,与半室外派对区衔接。池畔配备有餐台与休憩设施,可满足社交的多元需求——无论是小型烧烤派对,还是星空下的红酒品鉴会,这里都能成为夜间派对的活力中心。一条阶石直接将这一派对空间连往山崖脚下的海岸,阶石两侧种植着抗风的仙人掌与旅人蕉,既加固了边坡,又增添了热带风情。整个下层空间便成为了整个别墅区最惬意、最亲近大海的地方。


与悬崖海岸毗邻的下层派对空间
04
东方风韵:
在地性的活力进阶
为消除原有建筑风格的碎片化,设计团队统一改造所有楼栋屋顶:采用体现东方文化的四角坡造型,既契合泰国传统建筑神韵,又融入中式园林灵动,宛如展翅欲飞的鸟翼。屋顶铺设轻质铝板,使建筑群在山间呈现和谐整体轮廓,远观仿佛从崖壁自然生长而出。
最靠近海岸的西侧,两座亭榭从客房伸出,与上层泳池共同构成配套公共活动空间。这两座颇具东南亚风格的亭子,在西侧庭院延展出点状灰空间,可室外待客,也能作为家人聚餐赏景的室外餐厅——用餐时,食物香气与海风、草木芬芳交织,带来味蕾与嗅觉的双重享受。


位于上层泳池两侧的亭榭空间
室内设计方面,原有空间以品质升级为主,新建的健身房与康养SPA馆则量身定制。整体风格彰显东方典雅,设计团队联合当地施工方,选用色彩温暖、触感温柔、能安抚情绪的在地材料,让使用者感受浓郁的普吉文化与兰纳色彩。

客房或被热带森林环抱,或拥有极佳的观海视野。

以门窗框景的借景手法出现在别墅里的每一个开放空间。
改造后的悬崖别墅酒店既保留了山野间的原始韵味,又通过功能优化与景观升级,为住客提供了更丰富的度假体验——每一处空间,都藏着设计的巧思;每一步行走,都是与自然的对话。这座悬崖边的别墅,便是在光影、山海与人文的交织中,成为了一首流动的诗。


从上至下的游走路线充满整个别墅,在步行过程中会不断感受到与海浪的亲近。
EricTsui团队的差异化优势,就在于将奢侈品行业的“顶级体验感“引入度假空间设计。当多数别墅还在比拼泳池尺寸时,他们对真正的、顶级的、实践的生活方式维度的深度开发,正重新定义海岛豪宅的价值坐标。

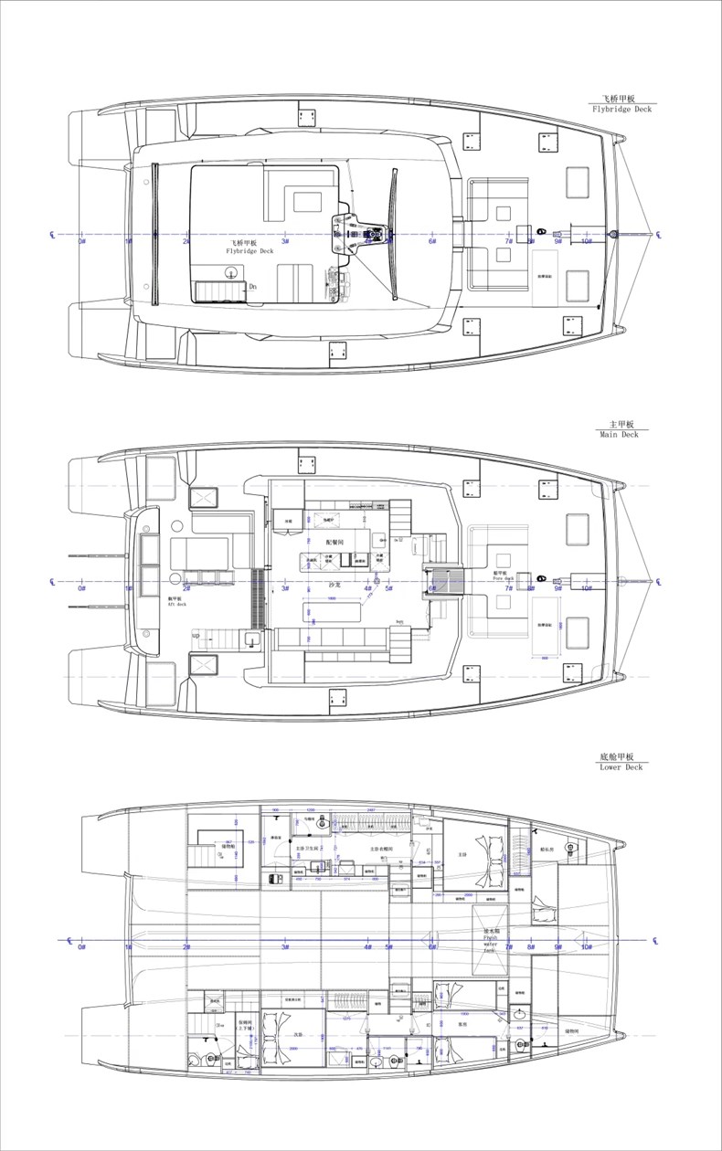
总平面图 © KWSD

流线分析图 © KWSD

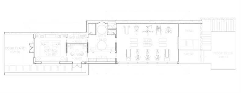
SPA与健身会馆(新增)平面图 © KWSD
项目信息
项目名称:普吉岛西岸悬崖海景度假别墅
项目类型:别墅 / 酒店
设计团队:KWSD境物设计
设计人员:Eric Tsui(徐晓东),施洁莹,王帅
完工时间:2024年9月18日
项目地址:泰国普吉岛
建筑面积:3000㎡
摄影版权:The Aquila
撰文:胡不周

设计腕儿官方微信
010-88600030

