【鸿艺源新作】新天鹅堡私宅设计|绝美轻奢新中式:一杯清茶,共待流年
现代 简雅 宁静

“家人闲坐,灯火可亲,闲来知茶,静享岁月,最是生活中幸福而闲适的光景,这也是很多人理想中生活的模样”,设计师郑鸿这样讲道。19年的私人住宅设计研究与实践,让他在面对“什么是家的本真,什么是真正的私宅设计”时有了这样的理解——不追求刻意,不强化风格,不着墨矫饰,家与业主的居住日常相融一体,回归本真。
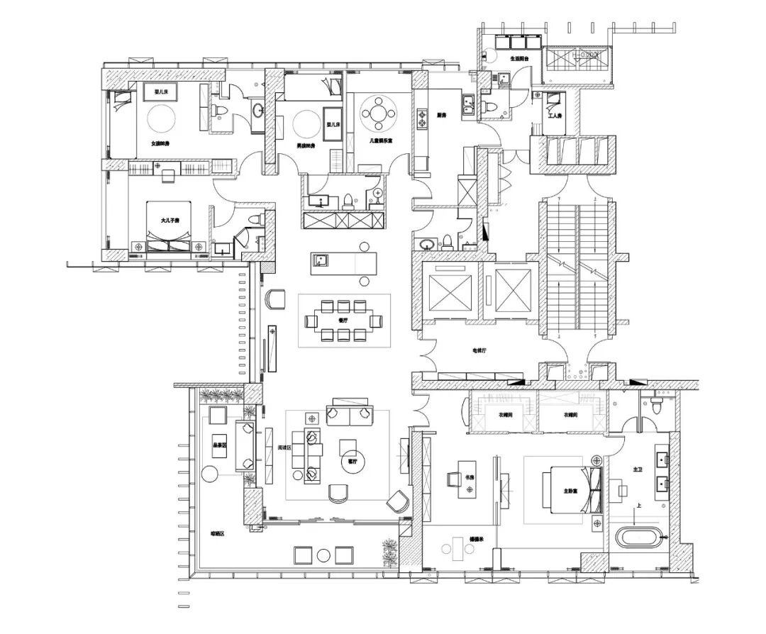
项目坐落于深圳华侨城的新天鹅堡,坐享海湾山湖的自然美景,380㎡私享空间,约7.2m宽的观景阳台,南北通透,三面采光,四室三厅,这样开放与独立兼顾的空间,给了设计与生活多种互动的可能性。业主是一对恩爱夫妻,他们对清雅闲适的生活有着深深的渴望。鸿艺源设计将中式情韵以简雅静宁的格调呈现出来,让居者在木作的纹理、阳光的渗透、清茶的幽香中,品味生活的烟火气与安适感。
踏入家门,映入眼帘的是绢丝手绘屏风,寥寥数笔写意了一幅“小荷才露尖尖角,早有蜻蜓立上头”的生动场景。白天,明媚的阳光洒进来,让人产生小池、微风与荷叶田田的自然联想。夜晚,当忙碌一天的男主人回到家里,在温煦的灯光下,空气中的静逸与幸福感足以驱走一天的疲惫。
客厅
面对7米宽的客餐厅开间,设计师以亚麻与木色这样低饱和度的色系,打造出简雅柔和的空间韵调,为日后的生活场景留足想象与施展的余地。意大利 Minotti 家具品牌沙发与实木柜搭配,在柔光下呈现出静穆的美。装饰小品不多且简净,几只茶坛,几本闲书,叹茶翻书,便足以架构起居住者的生活日常。

餐厅
餐厅延续会客厅空间的基调,臻选意大利 Poliform 餐桌椅,精致的亚克力山水造型灯饰,以简单的形制礼遇生活之美。
西厨岛台采用大理石与木材无缝贴合,睿智的黑在空间中焕发着张力,突出设计臻选的态度与品质的精尚。
主卧套房
约64㎡的通透主卧套房设计,以三进的方式将书房、卧室、主卫进行构设,使空间具备更好的秩序感与私密性。书房以简净的黑白色调对话,现代极简语汇与中式情韵在空间中相融相生,分外静雅。飘窗区被设计为茶室,原木、清茶、松叶、花卉交汇在一起,清甜而微香。晨间的日光柔和,夜晚的月色明澈,一杯清茶,共待流年。
主卧无主灯设计,而是将灯光收纳于吊顶内,使室内显得更为柔和安适。设计将真正的尊享藏于每个细节,精细打磨的墙面与木制地板、细腻柔软的暖棕色床品,通过材质的光感隐透简净高雅的质感美学。
次卧
次卧两面超宽窗台,纳入朗阔无垠的好景,空间格调疏朗气清。设计师发挥了创意想象,将一块深色亚克力隔板做成床头背景墙,巧妙利用空间之余,亦保留了空间尺度的敞阔感。
婴儿房
两间婴儿房以淡粉与水蓝作为区隔,配备成对的婴儿床、衣橱,还有一件件童趣别致的玩具。在设计中,鸿艺源设计贯穿着对未来生活的考虑,为居住空间留有成长与进化的可能。婴儿房及儿童娱乐室均在背景墙的设计上做了预留手法,随着孩童的成长,家长只需将家具进行替换,无须进行二次装修。
“家与居者应是一体的,家的外观好比人的外表衣着,整洁雅致,而内里的品质臻尚而精致。我们做私宅设计,应匹配居住者的日常生活场景,设计出每个人的生活状态,实现他们在家里的行为习惯与内心所需,才能打造出顶级人群的梦想居所与理想生活”,郑鸿说道,他始终坚持安静纯粹的方式做私宅设计,结合居住的舒适体验性,在材料、功能、纹理及色彩上加以细致地处理,拉近设计与生活的距离,让居者与空间一同安然相依,欣然生长。
▽
鸿艺源设计,所见即所得
近20年豪宅设计历程,鸿艺源设计坚持要求实现“所见即所得”的设计,让客户拥有真正希冀的、美好的、丰盛的私享生活空间。这对设计团队来说,是专业和资源的考验与挑战,需要拥有高于客户的审美和体验,拥有足够强大的供应商体系,更要拥有对专业的极致追求和实现能力。
客餐厅效果图
客餐厅实景图
客厅效果图
客厅实景图
书房效果图
书房实景图
主卧效果图
主卧实景图
次卧效果图
次卧实景图
婴儿房效果图
婴儿房实景图
平面图
项目名称 | 深圳新天鹅堡私宅设计
项目地址 | 广东 深圳
项目时间 | 2019年2月
硬装公司 | 鸿艺源设计
硬装设计 | 郑鸿
软装公司 | 例外软装设计
软装设计 | 徐静








