深零设计|210㎡暖色顶复,开放式布局下的纯享生活!
/ 温柔予光 /
在四季风物的更替里缓缓前进

本案位于【合肥-元一柏庄】,将作为婚房的顶层复式,经过优化结构布局,叠加动线场景,重组空间功能,实现了一场沉醉的生活之旅。

一层客厅原本的挑高空间,实现顶复上下楼层动静分区,以梁柱结构及岛台餐桌划分餐厨空间,将客餐厅调和统一,线面交融处,诗情画意轻抚指尖,开放式布局中,寻到最优的空间层次。



多功能琴房维系着自由与自我,通过空间行为,定义一幕幕生活瞬间。


二层主卧床尾书桌隔断,以适宜的比例结构,重叠自我映射,在私密与有序中产生动态平衡,材质与功能契合,舒适与温柔增色。




不被限于框架之中,独立且融合,功能且舒适,在日复一日中碰撞出愈发赤诚的生活感知。
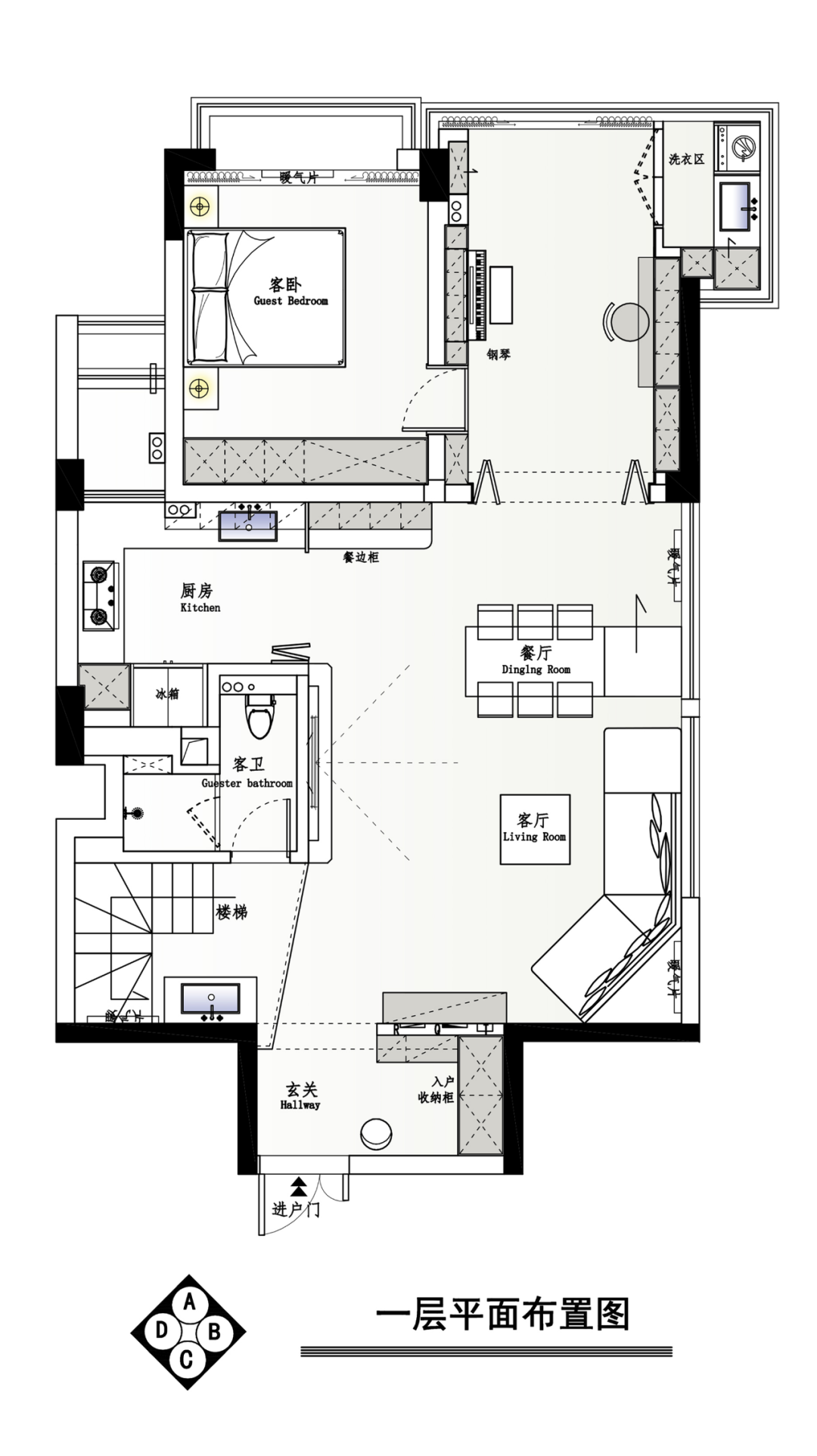
户型图
①一层主要为动区生活空间,优化客餐厨布局及动线,增设多功能琴房,给予居者更舒适全面的生活体验。
②二层为主卧套间,调整空间配比,增设衣帽间及办公区,放大生活细节。
合肥-元一柏庄 | 地址
210㎡顶层复式 | 面积
现代简约 | 风格







