合肥深零设计新作 | 133㎡精装房改造,大横厅增书房+阳台挑高设楼梯,功能质感双双升级!
设计
是一段艺术生活的开始
Design
It's the beginning of an artistic life

本案是位于【合肥-庐月湾】的一个精装房改造项目 ,面积为133㎡。居住者是一家三口,业主对房屋的收纳储物有较大要求,能接受一定程度的拆改,整个设计中,确定了现代简约风格;设计师在精装房的原始布局上进行优化和改造,从生活功能、空间美学以及家居质感层面考量,为居者打造一个舒适与颜值并存的优质居所。
作品信息
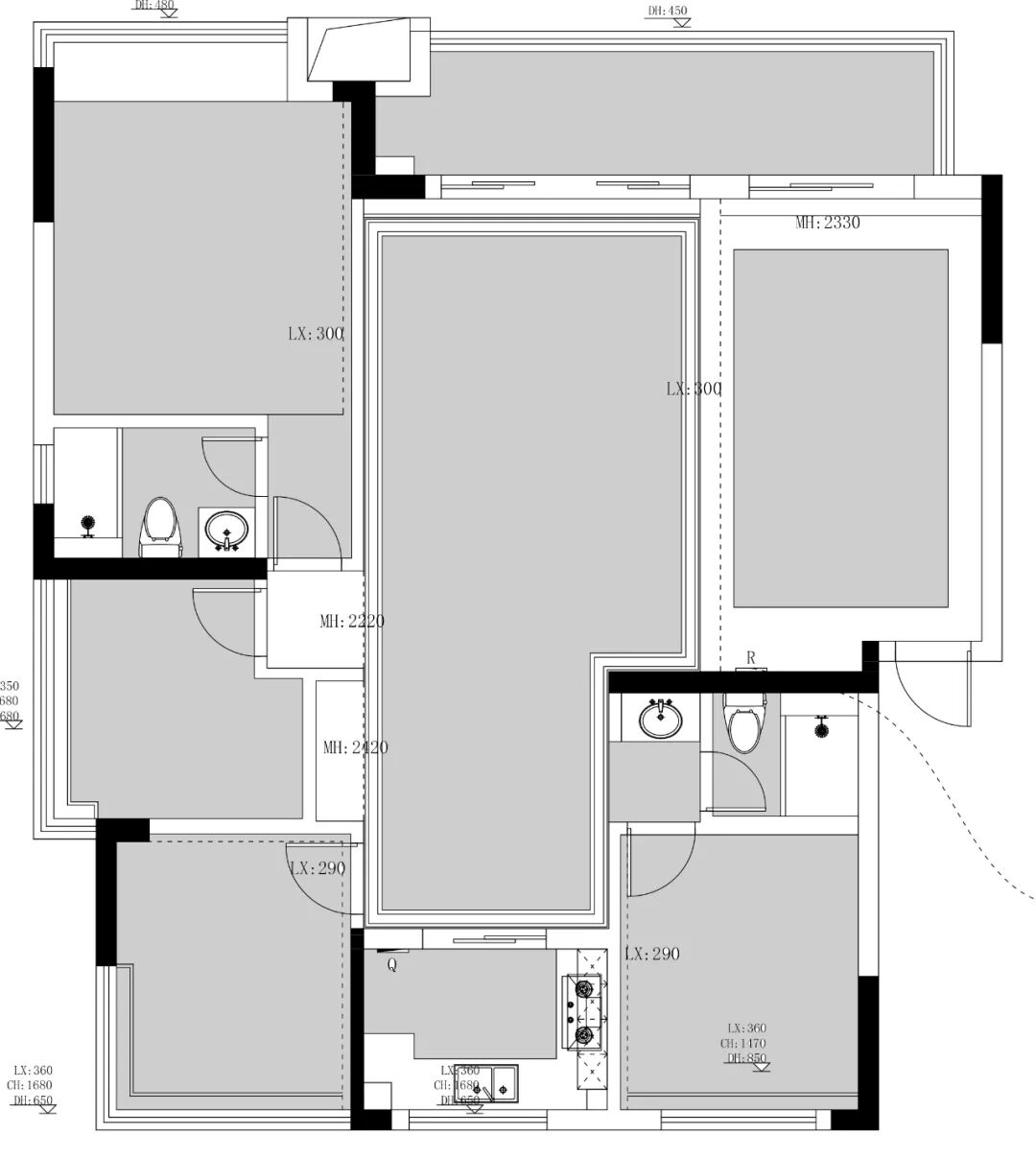
户型:133㎡三室两厅
风格:现代简约
地址:合肥-庐月湾
设计:深零设计
施工:合肥深零设计
▲before
▲after
设计说明
①保留原始横厅结构,客厅+开放式书房,将横厅户型优势放到最大。
②在原餐厅的基础上扩充西厨柜,丰富餐厨功能。
③原始主卧较狭窄,移动墙体扩充主卧面积,同时将洗手台移至进门处,优化主卫布局。
④保留三室,结合不同空间设计了大量的收纳柜体,并在主卧和女儿房之间设计了独立衣帽间,供妈妈和女儿同时使用。
⑤将阳台包进客厅,结合挑高阳台,增设二楼休闲空间。
留白,展现空间深度
在这个快节奏的时代,精装房交付已然成为一种趋势,但扪心自问,我们甘心让曾经憧憬无数次的家,就这样套用千篇一律、毫无灵魂的模板吗?
In this fast-paced era, hardbound housing has gradually become a trend: to save owners' decoration time, but also to meet the housing needs of some people. But ask ourselves, are we willing to let the home that we have looked forward to countless times use the same, soulless template in this way?
当然不,我们所期待的家,一定是独特且有深刻意义的,它会见证我们未来的漫长岁月、也会参与当下每一天的生活。它是载体,亦是寄托。
Of course not. The home we are looking forward to must be unique and meaningful. It will witness the development of our future years and participate in every day of our life. It is a carrier and also a sustenance.

素而后绘,一个有潜力、有深度的空间绝对不是色彩斑斓而张扬的,大幅度留白,才更能显现空间的深邃与质感。
painting after plain painting. A space with potential and depth is definitely not colorful and publicized. Only by leaving a large margin blank can we show the depth and texture of the space.

一字型玄关开阔大气,入户换鞋收纳一气呵成。增加悬空双面收纳柜,既满足储物需求,又可作隔断实现空间分割、打造出洄游动线,不减空间之通透。
The zigzag porch is open and grand, and it can be stored in one breath by changing shoes. Increase the double-sided storage cabinet, not only meet the storage needs, but also can be used as partition to achieve space division, create a migratory line, without reducing the space permeability.


陪伴是最长情的告白,同处一个屋檐下,也要珍惜共处时光。横厅空间中,客厅与开放式书房相结合,营造温情且有互动感的生活方式。你俯首案牍,而我在你一抬眼就能看见的位置。
Company is the longest confession. Even if you are under the same roof, you should cherish all your time together. In the horizontal hall space, the living room and open study are combined to create a warm and dynamic life style. You look down on the papers, and I'm where you can see when you look up.


电影《卡萨布兰卡》里有一句名言:“如今你的气质里,藏着你走过的路,读过的书和爱过的人。”
There is a famous saying in the movie Casablanca: "now you have a temperament that hides the way you have gone, the books you have read and the people you love."
空间气质的组成也是类似,哑光蓝的开放式书架有颜有质感,收纳书籍与藏品将主人的品味与气质彰显于无形之中,空间的深邃之感也就此显露。
The composition of space temperament is similar. The open bookshelf in matte blue has color and texture. The collection of books and collections shows the master's taste and temperament in the invisible, and the deep feeling of space is also revealed.



沐浴在阳光下,行走于天地间,最平凡、却也是最美好。将空间与自然相结合,成就更有诗情画意的生活篇章。
Bathing in the sun, walking in the world, the most ordinary, but also the most beautiful. The combination of space and nature makes a more poetic and picturesque chapter of life.

建筑师安藤忠雄说过:光线是最重要的控制因子。这句话放到家居设计中,也同样适用。阳台并入客厅,光线充分引入室内,营造更明亮通透的家居氛围。阳台部分悬挑,结合空间设计转角楼梯,也增添了一个视野绝佳的观景之地。
Architect Tadao Ando said: light is the most important control factor. This sentence is also applicable to home design. Balcony into the living room, light fully into the interior, create a brighter and transparent home atmosphere. Part of the balcony overhanging, combined with the space design corner stairs, also added a view of the best view.

美味与幸福,都让人回味无穷
我看过山川湖海,归来时不辜负美食与爱。
I have seen mountains, rivers and lakes, and come back to live up to the food and love.
烟火气最能赋予真实感,不论多大的房子,有了烟火气就好像“活”了过来。灶台上滋滋地炒着菜,烤箱里嗡嗡地烘焙着点心,香气和声音一道将空间填满,也将人心填满。
Fireworks can give the most realistic feeling. No matter how big the house is, it is like "living" to come. The cooking on the stove is zizizhi, and the dim sum is baking in the oven. The aroma and sound together fill the space and fill the heart.

原始厨房的位置不变,于餐厅扩充西厨功能,温柔暗粉与水磨石结合,给空间添一份生动;爵士白的大理石桌面,给生活加一份高雅情趣。
The original position of the kitchen remains unchanged, expanding the western kitchen function in the dining room, combining gentle dark powder with terrazzo, adding a vivid space; the white marble table top adds an elegant taste to life.


宁静致远,舒享自由
绿植造景,给纯粹至简的卧室带来生机与勃然,朦胧的白色纱帘翩翩落地,与窗外的世界虚实相隔。
Green plants make the scene, bring vitality and vigor to the pure and simple bedroom. The hazy white curtain falls on the ground, separated from the real world outside the window.
设计的力量不在于用了多少装饰,而在于整体的把控。无主灯和利落的线条,营造简约有深度的空间,让人一眼看过,就平静、沉稳下来。
The power of design is not how much decoration is used, but the overall control. There is no main lamp and sharp lines, creating a simple and deep space, let people see, calm down.

于居者而言,精装房再设计是改善型需求,因为家的重点永远在于“质”:提高生活品质、优化生活空间。
For the residents, the redesign of hardbound housing is an improvement demand, because the focus of home is always "quality": improving the quality of life and optimizing the living space.
在设计师眼里,空间没有好坏之分,只有合适与不合适。经过解构与重塑,让空间更贴近居者、更能包容生活百态,那这个家就是成功的。深零潜心做设计,不断汲取经验、提升能力,力求在未来,打造更多理想的家居空间。
In the designer's eyes, there is no good or bad space, only suitable and inappropriate. After reasonable changes and design, let the space closer to the residents, more tolerant of life, then this home is a success. Deep zero design, constantly learn from experience, improve ability, strive to create more ideal home space in the future.
人生无处不惊喜,和深零一起,点亮更美好的生活空间!
Life is full of surprises. Together with Shenling, we can light up a better living space!







